東京・仙台を拠点にアンティーク家具修理・補修・リフォーム・販売しているファニチュアヒロシ。アンティーク椅子・ソファ・テーブル等全国対応。
無料相談実施中
法人・個人問わずお気軽にお問合せください
022-225-0564
キッチンカウンターの下にキャビネットをお作りしました。
こちらではオーダーメイド家具サービスについて紹介いたします。
お部屋も大きさや収納したいものに合わせてサイズや内部の仕様、デザイン、色合い、材質を店内の家具を参考にお選びいただけます。簡単な図を書いていただけば制作図面を作り無料でお見積り致します。図面の変更は何度でもお受けしますのでご安心ください。納得のいく商品を長く大切に使っていただきたので、ご希望は多いほうが自分だけのオリジナル家具になると思います。
お客様ひとりひとりに合わせた細部までこだわりの一品をおつくりしています。たくさんの 実例写真と製作図面を見てお選びください。
古民家の部材を使い造られた30年ぐらい住まい、リビング&ダイニングをリフォームして、アンティーク調の家具を洋服を掛けるホールローブや多目的チェストを各部屋にご注文いただき納めさせていただきました。


洋服を掛けるホールローブは奥行を多目的チェストに合わせて45cmにして洋服を正面掛けするように金具にしてあります。暖かい部屋でスッキリとした空間の中でゆったりとした豊かな暮らしをしていただきたいです。


仏壇は大きいと置く場所がないと言われるお客様が多くいらっしゃいます。和室がない方でリビングやダイニングに置きたい方にはおすすめです。仏具のサイズに合わせて内部の仕様も変えることが出来、図面を作り打ち合わせをしながらお作りします。色合いもお好みに合わせて、木目調の白木やアンティーク調のこげ茶やお好みに色で作ることが出来ます。納期はご注文後40日ぐらいです。下台は大きさが違います。


展示している商品を見て・触れて・風合いを確かめて、お好きな家具を作りませんか。色合いもお好みに合わせて、木目調の白木やアンティーク調のこげ茶、白は2色お選びいただけます。
【マンションにお住まいの方にお勧め家具】
天井まで収納できるキッチンボードやコンパクトな仏壇お好きなデザインやピッタリサイズで作ります。
お値段は市販の家具の1割~2割高です。

★★ オ-ダ-メイド 家具 ★★
小仏壇のサイズや色の選択
仏具屋さんの仏壇で、好きなデザインのものだとサイズが合わなく当店のオーダーメードの仏壇をご注文いただいた実例です。豊富な色板見本やご希望の特注色、製作図面でご希望の内部寸法などもご自由に出来ます。何度か打ち合わせをしてご自分の生活に合わせたスタイルでお作りさせて頂きます。
★★ オ-ダ-メイド 家具 ★★
食 器 棚
去年オ-ダ-でTVボ-ドを作らせていただき、引き続きサイズや使いずらい部分を変更して食器棚を納めたお客様の実例です。そのほかにも今回は、寒さ対策でリビングル-ムに取り扱いが簡単で、汚れても洗える便利なタイルカ-ペットも工事させていただきました。


ダイニングとリビング部分にタイルカ-ペットを敷きました。







TVボードは扉を木製にしてカップボ-ドと合わせたデザインです。木製の扉だとチュ-ナ-やDVDの機材のリモコンの電波が遮断させますが、ガラスにしないで内部に工夫をこらしています。






ナラ材の無垢で指ぬきのサイズに合わせて作りました。


特注色や金具が選べて値段は同価格です。納期は40日~50日いただきます。
製作図面で打ち合わせを何度か繰り返して色合い・オープン部分の仕様・引き出しの取っ手のデザインや底板の補強の仕様・サイズなど細かく決めさせていただきました。

和室の部屋をログハウスのように丸太を重ねてリフォームをした部屋をシアタールームとしてTVボードを納めさせていただきました。

ウォールナットで幅300cmX高さ240cmの大型なもので電動スクリーと大型TVを組み合わせました。

テレビとDVD器具の接続でコードが多くてはみ出ることがあります。内部でコードの収納ボックスを作りスッキリ納まるように作られています。
テレビボードにガラスキャビネットが両側についています。テレビはメーカによりサイズの違いはありますが45~50型まで大丈夫です。オーダーメイド商品ですのでサイズや仕様を変えることも出来ますので相談ください。こちらのタイプは配線コードが見えないように内部に工夫をしてありますのでスッキリしてお掃除もしやすいと思います。
展示品サイズ (新商品)
幅180cmX奥行き47cmX高さ140cm
新築の時に収納家具を作られ本棚の部分がたりなくなり今回無駄なく本をたくさん収納出来る本棚を注文いただき色・素材・全体のバランスなどを考えました。棚板は横仕切りで本の高さで調整できるようにして、縦仕切りでA4サイズのファイルなどを立てられるようにスライド式に作りました。前からそこにあるようななじんだ雰囲気で溶け込み天井高最大で5.5mの空間にベストマッチして開放感がありスッキリまとまり出来栄えが良かったです。今までよりも倍の本が置けると思います。



天井高が5.5mあるので収納たっぷりで多目的に使えるボードにしました。
開放感のあるお部屋なので240cmの高さで作り色合いも圧迫感が少ないオフホワイトで仕上げています。
使い出があり収納力もタップリでスッキリした収まりました。
このチェストは妥協なしの全てナラ材の無垢で作られています。今どきめずらしい本物志向の方にお勧めの商品です。使い込めば家の重鎮のような存在になる家具だと思います。塗装は、イギリスのアンティーク家具修理に使うものを使用して天然塗装です。彫刻は、丁寧に彫り込まれたアンティークな風合いです。重さは普通の家具の2倍はあり引き出しの底板でも2cm厚のナラ無垢が使われています。サイズ 幅120cmX奥行き45cmX高さ83cm
クラシック家具がお好きな方で古い家具は苦手な人にもお勧めです。天然塗装で木肌の感じが自然でしっとりとしています。
金具の質感もどっしりとした重さと真鍮の鈍い光が他にない良さがあります。
アンティーク家具を御希望のお客様が、ホームページからお問合せいただきました。
店舗待合のベンチやテーブルをお探しでアンティーク家具では、ご希望の形やサイズがないのでオーダーでお作りすることになりました。デザインは、画像でみていただき、図面を作り提案させていただきました。
出来る限りアンティークの風合いと同じ塗装やデザインを取り入れて変更しました。お客様のお仕事が合鍵を作る会社ですので、鍵穴の彫刻をベンチの背もたれに入れました。


スチールデスクでは無機質な感じがするのでナラ材でオフィースや書斎用デスクとして作りました。A4サイズのファイルが収納できて、鍵もかけられるようにしてあります。事務所ではなくサロンとして暮らしを提案する会社に納めさせていただきました。ご希望のサイズや仕様でお作りすることが出来ますのでお気軽にご相談ください。お問い合わせからメールをいただければお見積りと図面を作成します。サイズ 幅105cmX奥行き60cmX高さ72cm
マンションのダイニング部分にオーダーメイドでキャビネットはいかがですか。
キッチンカウンターの下は意外と物を置く台として使い便利ですが、物が多くなり雑然と見えてしまうようです。採寸をしてお客様のご希望に合わせて仕様を決めて製作図面を作り無料でお見積りしています。展示サイズ幅230cmX奥行き25cmX高さ90cmスッキリとまとまり収納力もあるので食器や本やCDなどリビングで使く小物は充分納まると思います。たくさんの実例がありますのでお問い合わせください。
キッチンカウンターの下がどうにも使えない場所で物を置くとまとまりがつかずご相談を受けました。
引戸にして有効的にスペースを使えるようにしました。ダイニングセットのイスを引くと両開きの扉では開け閉めが大変なので引戸の扉にしてあります。使いやすく板扉なので中が見えないでスッキリ納まり収納もタップリです。
◆特注クッションとボルスター◆
オーダーでご注文を色々いただくお客様からの要望で円柱型と長方形のクッションをお作りしました。ソファを置くスペースがないため座布団に円柱型のクッションを作り背あてにしてテレビを見たいと言われました。座布団では薄いのでソファの座面のクッションをイメージして高さ30cmでソファのような雰囲気で作ることにして、縫製をするところが難しく縫製工場を探してインテリアの仲間からの紹介で神奈川県の業者でお願いしました。
お客様からは思ったような出来栄えでとても喜んでいただきました。
◆リビングキャビネット&TVボード◆
オーダーメイドでリビング用TVボードをお作りしました。お客様のご希望は、他にはないアンティークな雰囲気の彫刻があり、キャビネットも兼ねるようなリビングボードを探されていていました。なかなか気に合うものに出会いがなかったようです。幅は310cmで大きなテレビが収納できる構造で、高さは圧迫感を少なくするため165cmに抑えてあります。全体にアンティークな雰囲気でクラシックな彫刻や真鍮取っ手で仕上げています。
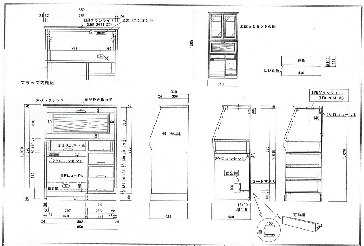
◆ひとつにまとめたライティングデスク◆
パソコンを収納して電話も一緒に置いて使えるようにお客様の要望を取り入れてお作りしました。イスを入れるスペースの奥に無線ランのルーターを足元の邪魔にならない程度に付けてあります。配線コードも自由自在にコード穴を設けてあり、ライティング内部にはLEDランプを取り入れデスクワークをするときに明るくなるようにしました。
オーダーメイドなので図面で確認させて何度も訂正をしてお客様ひとりひとりのオリジナル家具をお作りしています。サイズ・デザイン・仕様・色合い・取っ手など自由に選ぶことが出来ますのでお勧めです。お気軽にお問い合わせください。

◆お好きな生地でランプシェード◆
ウイリアム・モリスの生地でフロアーランプシェドを貼り換えました。お部屋のインテリアに合わせてこのような形でモリスを取り入れてみてはいかがでしょうか。プリント生地であれば大体大丈夫です。上下に付けたトリムはたくさんのデザインがありますので組み合わせが選べますのでお気軽にお問合せ下さい。
◆オシャレなブランケットチェスト◆
ソファベッドを納めさせていただきふとんやタオルケットを収納するところがないのでBOXのご注文をいただきました。
イギリスの輸入物やアンティークはありますが大きさお好みのものが見つからなく特注でお作りすることになりました。ブドウがお好きなので彫刻を前面に入れることになり色合いはイタリア製のキャビンットに合わせせました。
◆スッキリ納まる便利なキャビネット◆
食器棚別に収納が欲しく決められたスペースでした。常に通る場所なので使いやすく便利にすることを考えました。
高さをキッチンカウンターと同じいして扉はガラスだと危ないので板扉にして取っ手はチョッとオシャレに真鍮を使いました。
◆憧れのログハウスにテレビスクリーン◆
長年の夢でログハウスを建てることがなかなか実現しないので自宅の一部屋に丸太を天井と壁に張りました。映画鑑賞がお好きなので特大スクリーンを付ける計画です。

ウォールナット材でスクリーンボード兼TVボードにイタリア製黒のコーナーソファだけの贅沢くな空間です。120インチの電動スクリーンで普段は壁の丸太が見えるように設計しました。丸太の音響効果はDVDを見る時迫力満点でしょう。



キッチンカウンターの下が思うように使えなく物を置くと雑然としてしまうのを気にされておられました。展示しているキャビネットを見ていただきカウンターの下にオーダーで収納ボードを作れることをご説明したら気に入られてお好きな色とデザインでお作りしました。
採寸で現場を見せていただき、実際使いやすいようにダイニングセットを置いてみて無理のないサイズで最大限奥行きをカウンターよりも少しはみ出すぐらいにしました。中央部分は椅子を引いても使えるように引戸にして、両サイドは開き戸で作りました。横幅360cmなので収納タップリで、食器だけでなく本やCDなど日常生活で使うものがたくさん入り、お部屋も片付くようです。
◆オリジナル キャビネット◆
棚として使われていて収納することが出来ませんでした。部屋が片付かないのでオリジナルキャビネットを作ることになりました。
震災でガラスや陶器が壊れたため扉には耐震金具を付けて安心してお使いいただけるように取り付けてあります。構造上のデザインの変更などがありました。
サイズとデザインを変えて収納タップリのキャビネットが出来上がりました。
ガラス扉だけでなく板扉もあるもで色々なものがスッキリ納まりお客様には喜んでいただきました。
◆オリジナルキャビネット◆
長年使われていないピアノがリビングルームにありました。なかなか思っているサードボードが見つからなく10年以上もそのままの状態でした。お^だーメイド家具の実例集を見ていただき打ち合わせをしました。
ガラスの部分を少なく多目的に使えるリビングボードをお勧めしました。扉を開けると一目で何があるかわかるので便利です。
サイドボードを置く場所を見せていただきサイズを測り、いくつかのデザインをした図面や色合いの見本を用意して再度打ち合わせで細部の仕様を話し合い最終図面を作り仕上げました。
天袋がついているので高さの制限がありました。収納をタップリできるようにしたい要望がありましたのでピアノと同じ高さにして空間部分は観賞植物や季節の飾りが出来るスペースを作りました。
◆TVボード 電気コードがスッキリ◆
サイドボードにテレビとチューナーなどをのせてお使いでしたが、壁に収まらなく半分ぐらいはみだしたようになり裏面の配線コードが複雑にからみ気になるのでご来店いただきました。現状を拝見して問題点をお聞きしました。
お使いのサイドボードと同じサイズでTVボードをお作りしました。チューナーとデッキは中に収納して配線コードは内部で処理ができ前面からも見えないようにBOXを作り裏側から見ても配線コードが見えないように仕上げスッキリと納まりました。
サイドボードの裏側が、ダイニングで食事をするときにチューナーや配線が気になりどのようにすれば解決できるか悩まれていました。
数回ご来店いただきお話をさせていただきましたが想像してもわからず現状を見せていただき図面を作りました。問題点をひとつひとつ解決してテレビの配線も元通りに設置して無事納品致しました。
新築のマンションでダイニング部分の収納が少なくサイドボードなどを置く場所がないのでオーダーメイドでキャビネットを作りました。
キッチンカウンターの下は意外と物を置く台として使い便利ですが、物が多くなり雑然と見えてしまうようです。採寸をしてお客様のご希望に合わせて仕様を決めて製作図面を作り無料でお見積りしています。
スッキリとまとまり収納力もあるので食器や本やCDなどリビングで使く小物は充分納まると思います。たくさんの実例がありますのでお問い合わせください。

飾りを付けないで前面をスッキリ仕上げました。
リビングで使う物が多くなり雑然として落ち着かないのでどうにかしたいと相談があり、天井までの収納タップリの壁面収納家具です。お子様の本やオモチャやミシンやアイロンなどが入り、お客様もびっくりしていました。部屋が広く感じ、使いやすくTVボードの高さが天井まででも問題ないと満足していただきました。
高さを低くしてパソコンデスクにしているので、人が集まっても狭い感じがしなくスッキリしています。
長年お付き合いさせていただきてるお得意さまからの相談で、食生活も変わり日常生活をシンプルに暮らすためにキッチンと寝室と和室の使い方を変えました。食器棚は使う食器のサイズに合わせ奥行きを32cmにして、オーブンレンジを入れられるように電気工事もして取付、和室はパソコンを使うデスクを飾り棚に合わせて作りました。寝室は、ワードロープを使いづらい部分を整理して手直しをしました。マンションなので無駄なものを置くスペースがもったいなのでシンプルにするのは必要なものを大切に使い、ものを多くしない心がけが必要です。

本や書類もたっぷり収納出来、お部屋のスペースも凸凹がでないのでスッキリ納まります。
幅が200cm、高さが180cm、奥行き45cmのめずらしいサイズのデスクです。幅が広いのでパソコンを置いても邪魔にならなく本を読んだり書き物をするにもある程度満足させてくれるスペースがあるので人気のデスクです。オーダーメイド家具ですのでサイズや素材と色合いも選べるのでお勧めです。もち運びのために分割できますので移動も便利です。
お問合せからサービス提供開始までの流れをご説明いたします。
平日は時間がないという方も安心です。
平日はお仕事で忙しいという方のために、土日もご相談を受け付けております。

お客さまとの対話を重視しています。
お客さまとの対話を重視することがモットーです。お客さまのお話にじっくりと耳を傾け、時間をかけて丁寧にヒアリングいたします。
弊社はフォロー体制も充実しております。
弊社では、お客さまにご納得いただけないままお手続きを進めるようなことは一切ございません。一つでもご不明点がございましたら、お気軽にお申し付けください。
ここでは弊社サービスの料金についてご案内いたします。
1、TVボード サイズ幅120cmX奥行き45cmX高さ50cm | ¥130,000~ |
|---|---|
2、サイドボード サイズ幅100cmX奥行き35cmX高さ120cm | ¥150,000~ |
3、キャビネット サイズ幅90cmX奥行き35cmX高さ90cm | ¥150,000~ |
4、チェスト サイズ幅120X奥行き45cmX高さ85cm | ¥180,000~ |
ご不明な点がございましたらお気軽にお問合せください。